logo
N1.RU — новая улучшенная версия Е1.Недвижимость
Чтобы вернуться на старый сайт Е1.Недвижимость, перейдите по ссылке в нижней части сайта N1.RU
  • Продажа
  • Аренда
  • Новостройки
  • Журнал
  • Компании
  • Шаблоны документов
  • Налоговый вычет
  • Еще
  • Личный кабинет
    • Регистрация на Циан
    • Одинцово
  • Добавить объявление
Тип недвижимости
Одинцово
Начните вводить или выберите объект в выпадающем списке
Количество комнат
Цена
  1. Недвижимость в Одинцове
  2. Продажа
  3. Квартиры
  4. 32 объявления

Продажа двухкомнатных квартир в Одинцове

  • Вторичка32
  • Без посредников6
За все время
Сортировка по умолчанию
СпискомСписком
ТаблицейТаблицей
На картеНа карте
Открыть поиск по карте

По вашему запросу объявлений не найдено

1/15
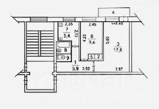
2-к, 30 лет Октября, 11 Показать на карте
Жаворонки
Продаётся .2-х комнатная квартира 42,8м2, в тихом зеленом поселке Жаворонки Квартира расположена в добротном кирпичном доме. В квартире 2 изолированных комнатыОколо дома автобусная остановка. Вокруг дома современные детские площадки с винтовыми горками-трубами и воркаут площадка, баскетбольная площадка, которую зимой заливают и она превращается в каток Жаворонская. В шаговой доступности врачебная амбулатория (филиал Одинцовской областной больницы), до станции Жаворонки (МЦД-1) 15 минут пешком. Выезд на Можайское и Минское шоссе. Один взрослый собственник (ДКП 2005г).Никто не прописан.
42 м2
3 / 5 этаж
Кирпич
  • Показать контакты
  • Добавить в избранное
42 м2
3 / 5 этаж
Кирпич
6 000 000 
140 187 /м2
    1/12
    2-к, 30 лет Октября, 9 Показать на карте
    Жаворонки
    1 взрослый собственник, свободная продажа, быстрый выход на сделку оперативный показ
    35 м2
    3 / 4 этаж
    Кирпич
    • Показать контакты
    • Добавить в избранное
    35 м2
    3 / 4 этаж
    Кирпич
    5 200 000 
    148 571 /м2
      1/12
      2-к, Железнодорожная, 15 Показать на карте
      Жаворонки
      Номер в базе: 782709. Квартира находится в селе Жаворонки, расположенном в Московской области. Это уютный и тихий район, окруженный зелеными зонами и природными красотами. В квартире сделан современный ремонт 2023 года, заменены все коммуникации.О ЛОКАЦИИ:- до станций Жаворонки 5 мин. пешком- школа- пруд возле дома- экологически чистый районО ДОМЕ:- кирпичный- парковка открытая во двореДОКУМЕНТЫ:- юридически абсолютно чистая- полная стоимость в договореВозможность приобретения в ипотеку под 10,99%.Содействие в получении положительного ипотечного решения со скидкой на % ставку. Страхование со скидками до 50%.Юридическое сопровождение сделки.
      54 м2
      2 / 2 этаж
      Кирпич
      • Показать контакты
      • Добавить в избранное
      54 м2
      2 / 2 этаж
      Кирпич
      5 000 000 
      92 593 /м2
        1/24
        2-к, 30 лет Октября, 4 Показать на карте
        Жаворонки
        АГЕНСТВО НЕДВИЖИМОСТИ ''ЭТАЖИ'' ПРЕДСТАВЛЯЕТ ВАШЕМУ ВНИМАНИЮ 2-х комнатную квартиру в экологически чистом районе в близи реки Малая Вяземка. Видео отправляю по запросу.Всего 13 домов многоквартирной застройки находятся в окружении леса и частного сектора. Рядом с домом функционирует Жаворонковская амбулатория, магазин продуктов Риал, есть библиотека и детский развивающий центр. Для любителей конного спорта в 100 метрах от дома имеется конный клуб ''Конные прогулки''. Летом можно ходить к речке Малая Вязёмка устраивать пикники и отдыхать. Аптеки, школы, детские сады, огромный спортивный стадион, магазины находятся рядом со станцией Жаворонки( 7 минут на транспорте). Остановка общественного транспорта находится рядом с домом.Документы:1 собственник , обременений нет, продажа свободная, полная стоимость в договоре.ПОКУПАТЕЛЮ:- помощь в получении ипотеки по ставке до 1% ниже, чем в банке.,- экономия выплат по страховке до 30%,- юридическое сопровождение сделки,- безопасные расчеты и финансовая гарантия до 25 000 000 рублей!. Номер в базе: 10188300.
        47 м2
        6 / 9 этаж
        Кирпич
        • Показать контакты
        • Добавить в избранное
        47 м2
        6 / 9 этаж
        Кирпич
        5 100 000 
        108 280 /м2
          1/26
          2-к, 30 лет Октября, 4 Показать на карте
          Жаворонки
          Продается 2-х комнатная квартира в кирпичном 9-ти этажном доме по адресу: Московская область, Одинцовский г.о., с. Жаворонки, ул. 30 лет Октября, дом 4.СОСТОЯНИЕ: светлая и уютная квартира с двумя изолированными комнатами под ремонт.ИНФРАСТРУКТУРА: в районе развитая инфраструктура, все необходимое рядом. ТРАНСПОРТНАЯ ДОСТУПНОСТЬ: удобный выезд на Можайское шоссе и Минское шоссе. Поблизости расположена ж/д платформа Жаворонки. На электричке до метро Кунцевская можно добраться за 30 минут. ЗВОНИТЕ, оперативно организуем для Вас просмотр данного Объекта. , Номер лота: 4192667
          47 м2
          6 / 9 этаж
          Кирпич
          • Показать контакты
          • Добавить в избранное
          47 м2
          6 / 9 этаж
          Кирпич
          6 000 000 
          127 389 /м2
            1/16
            2-к, Железнодорожная, 15 Показать на карте
            Жаворонки
            Продаётся квартира, рядом с жд станциейЖаворонки. В квартире сделан качественный евро ремонт, заменены всё коммуникации. Один собственник. В квартире, никто не прописан. Парковочное место во дворе. Всё подробности по телефону.
            54 м2
            2 / 2 этаж
            Бетонные блоки
            • Показать контакты
            • Добавить в избранное
            54 м2
            2 / 2 этаж
            Бетонные блоки
            5 650 000 
            103 291 /м2
              1/12
              2-к, 30 лет Октября, 12 Показать на карте
              Жаворонки
              Квартира находится в селе Жаворонки, расположенном в Московской области. Это уютный и тихий район, окруженный зелеными зонами и природными красотамиО ЛОКАЦИИ:- до станций Жаворонки и Дачное 5мин. на транспорте или 15 мин. пешком- школа - река Малая Вязёмка- экологически чистый районО ДОМЕ:- кирпичный- парковка открытая во двореДОКУМЕНТЫ:- юридически абсолютно чистая- полная стоимость в договореСодействие в получении положительного ипотечного решения со скидкой на % ставку. Страхование со скидками до 50%. Юридическое сопровождение сделки. Номер в базе: 767153
              42 м2
              3 / 5 этаж
              Кирпич - монолит
              • Показать контакты
              • Добавить в избранное
              42 м2
              3 / 5 этаж
              Кирпич - монолит
              5 000 000 
              119 048 /м2
                1/13
                2-к, 30 лет Октября, 11 Показать на карте
                Жаворонки
                Продаю двухкомнатную квартиру в 13 минутах пешком от ж/д станции Жаворонки. Комнаты изолированные, раздельный санузел, балкон. Один взрослый собственник, свободная продажа, никто не прописан. Много места для парковки автомобиля.
                40 м2
                4 / 5 этаж
                Кирпич
                • Показать контакты
                • Добавить в избранное
                40 м2
                4 / 5 этаж
                Кирпич
                4 700 000 
                117 500 /м2
                  1/21
                  2-к, 30 лет Октября, 11 Показать на карте
                  Жаворонки
                  Продаётся .2-х комнатная квартира 42,8м2, в тихом зеленом поселке Жаворонки Квартира расположена в добротном кирпичном доме. В квартире 2 изолированных комнатыОколо дома автобусная остановка. Вокруг дома современные детские площадки с винтовыми горками-трубами и воркаут площадка, баскетбольная площадка, которую зимой заливают и она превращается в каток Жаворонская. В шаговой доступности врачебная амбулатория (филиал Одинцовской областной больницы), до станции Жаворонки (МЦД-1) 15 минут пешком. Выезд на Можайское и Минское шоссе. Один взрослый собственник.Никто не прописан.
                  42 м2
                  3 / 5 этаж
                  Кирпич
                  • Показать контакты
                  • Добавить в избранное
                  42 м2
                  3 / 5 этаж
                  Кирпич
                  5 050 000 
                  117 991 /м2
                    1/37
                    2-к, 30 лет Октября, 4 Показать на карте
                    Жаворонки
                    Отличное предложение . Заповедные места , одно из лучших экологически чистых мест . Высокий первый этаж Большая застекленная лоджия..Кирпичный дом .Большая просторная с изолированными комнатами квартира . 1-я 15.5 и 12,9 м2. Развитая инфраструктура с магазинами , детскими садами , школа . Платформа электричек Жаворонки в шаговой доступности . Торг в пределах разумного . Всё для комфортного проживания .
                    45 м2
                    1 / 9 этаж
                    Кирпич
                    • Показать контакты
                    • Добавить в избранное
                    45 м2
                    1 / 9 этаж
                    Кирпич
                    5 300 000 
                    115 974 /м2
                      1/17
                      2-к, 30 лет Октября, 4 Показать на карте
                      Жаворонки
                      Арт. 78426919 В продаже уютная 2-х комнатная квартира, с изолированными комнатами и большой кухней, общей площадью 47,5 м², расположенная на 5-ом этаже 9-ти этажного кирпичного дома. Дом 1981 года постройки, одно подъездная башня Вулыха. Квартира расположена в тихом и экологически чистом районе Подмосковья. По квартире:-эргономичная планировка -просторная кухня -кухонный гарнитур, укомплектованный всей необходимой техникой -комнаты укомплектованы мебелью-застекленная большая лоджия Инфраструктура в шаговой доступности:- поликлиника- детские площадки - магазины- пункт выдачи WB- хоккейная коробка- спортивная площадка Документы и условия:- 1 собственник- Без обременений- Без вложений материнского капитала- Оперативный выход на сделку. Транспортная доступность до центра Москвы 40-50 мин. До м. Славянский бульвар 35 минут транспортом. 15 минут пешком до ж/д Жаворонки или 5 минут на автобусе. Автобусная остановка напротив дома. Удобный выезд на автомобиле на Минское и Можайское шоссе. Эксперт Кузько Алла была на объекте, и с удовольствием ответит на все ваши вопросы!
                      47 м2
                      5 / 9 этаж
                      Кирпич
                      • Показать контакты
                      • Добавить в избранное
                      47 м2
                      5 / 9 этаж
                      Кирпич
                      6 400 000 
                      134 737 /м2
                        1/6
                        2-к, 30 лет Октября, 3 Показать на карте
                        Жаворонки
                        Арт. 61309139. Продается просторня светлая квартира, 1 собсвенник с 2000г. без обременнений, частично мебелирована, квартира по документам полностью готова к сделку. БЕЗ ТОРГА!Показ оперативный по предворительной договоренности.
                        47 м2
                        9 / 9 этаж
                        Кирпич
                        • Показать контакты
                        • Добавить в избранное
                        47 м2
                        9 / 9 этаж
                        Кирпич
                        8 150 000 
                        171 579 /м2
                          1/15
                          2-к, 30 лет Октября, 11 Показать на карте
                          Жаворонки
                          Комнаты изолированные, раздельный санузел, балкон, центральная горячая вода. Один взрослый собственник, свободная продажа, никто не прописан и не проживает. Много места для парковки автомобиля, до ж/д станции Жаворонки 13 минут пешком.
                          40 м2
                          4 / 5 этаж
                          Кирпич
                          • Показать контакты
                          • Добавить в избранное
                          40 м2
                          4 / 5 этаж
                          Кирпич
                          4 700 000 
                          117 500 /м2
                            1/10
                            2-к, 30 лет Октября, 12 Показать на карте
                            Жаворонки
                            Продается теплая квартира в кирпичном доме. Состояние в точности как на фото, в квартире все остается. Документы готовы к сделке. Оперативный показ.
                            40 м2
                            5 / 5 этаж
                            Кирпич
                            • Показать контакты
                            • Добавить в избранное
                            40 м2
                            5 / 5 этаж
                            Кирпич
                            5 600 000 
                            140 000 /м2
                              1/21
                              2-к, 30 лет Октября, 11 Показать на карте
                              Жаворонки
                              Продаётся .2-х комнатная квартира 42,8м2, в тихом зеленом поселке Жаворонки Квартира расположена в добротном кирпичном доме. В квартире 2 изолированных комнатыОколо дома автобусная остановка. Вокруг дома современные детские площадки с винтовыми горками-трубами и воркаут площадка, баскетбольная площадка, которую зимой заливают и она превращается в каток Жаворонская. В шаговой доступности врачебная амбулатория (филиал Одинцовской областной больницы), до станции Жаворонки (МЦД-1) 15 минут пешком. Выезд на Можайское и Минское шоссе. Один взрослый собственник.Никто не прописан.
                              42 м2
                              3 / 5 этаж
                              Кирпич
                              • Показать контакты
                              • Добавить в избранное
                              42 м2
                              3 / 5 этаж
                              Кирпич
                              5 050 000 
                              117 991 /м2
                                1/8
                                2-к, Железнодорожная, 16 Показать на карте
                                Жаворонки
                                В 5 минутах от ж/д станции в сталинском доме (толщина внешних стен 50 см) теплая квартира ждет своих хозяев. Требуется переустройство и свежий ремонтВНИМАНИЕ! санузла нет, но есть возможность оборудовать .3-х метровые потолки дают простор для фантазии. Современное крутое решение - спальная антресоль. Любой способ оплаты, включая рассрочку. Возможно содействие в ипотеке и сопутствующих услугах. Торг реальному покупателю.
                                37 м2
                                2 / 2 этаж
                                Кирпич
                                • Показать контакты
                                • Добавить в избранное
                                37 м2
                                2 / 2 этаж
                                Кирпич
                                3 850 000 
                                104 054 /м2
                                  1/13
                                  2-к, 30 лет Октября, 11 Показать на карте
                                  Жаворонки
                                  Комнаты изолированные, раздельный санузел, балкон, центральная горячая вода. Один взрослый собственник, ипотека возможна, без обременений и ограничений, свободная продажа, никто не прописан и не проживает. До ж/д станции Жаворонки 13 минут пешком.
                                  40 м2
                                  4 / 5 этаж
                                  Кирпич
                                  • Показать контакты
                                  • Добавить в избранное
                                  40 м2
                                  4 / 5 этаж
                                  Кирпич
                                  5 000 000 
                                  125 000 /м2
                                    1/23
                                    2-к, 30 лет Октября, 4 Показать на карте
                                    Жаворонки
                                    Id 42057. Внимание! Продается светлая, уютная двухкомнатная квартира!Лучшее предложение в этом районе!Ремонт в отличном состоянии, полностью укомплектована! Две изолированные комнаты, просторная кухня, балкон! Семейный, уютный, тихий район. Богат своей природой, в пешей доступности лес, озеро, можно наслаждаться семейными прогулками, и дышать свежим воздухом, что особо ценно в наше время! Хорошая транспортная доступность, 5 мин на автобусе, 15 мин пешком до станции электричек!Полная стоимость в договоре.Оперативный показ!
                                    51 м2
                                    3 / 9 этаж
                                    Кирпич
                                    • Показать контакты
                                    • Добавить в избранное
                                    51 м2
                                    3 / 9 этаж
                                    Кирпич
                                    6 550 000 
                                    127 432 /м2
                                      1/6
                                      2-к, 30 лет Октября, 4 Показать на карте
                                      Жаворонки
                                      Номер в базе: 4865769. Продается уютная 2-комнатная квартира в живописном и спокойном районе Подмосковья! Это идеальное место для тех, кто ценит комфорт и близость к природе. Квартира расположена на 6 этаже 9-этажного кирпичного дома, в котором есть лифт и мусоропровод. Общая площадь квартиры составляет 48 кв. м, а кухня площадью 9 кв. м станет отличным местом для кулинарных экспериментов.Из окон открывается прекрасный вид на лес и детскую площадку, что создаст атмосферу уюта и спокойствия. В квартире две изолированные комнаты, а раздельный санузел обеспечит дополнительное удобство для вашей семьи. Лоджия — прекрасное место для утреннего кофе или вечернего отдыха.Тихие и доброжелательные соседи создадут атмосферу уюта и спокойствия. Вокруг много зелени, а близость леса позволит наслаждаться свежим воздухом и прогулками на природе.Транспортная доступность на высшем уровне: всего 15 минут пешком до станции Жаворонки или 5 минут на автобусе (остановка прямо напротив дома). Оттуда всего 15 минут до МЦД Одинцово. Рядом находятся Минское и Можайское шоссе, что делает поездки в Москву быстрыми и удобными.Инфраструктура района развита: в шаговой доступности поликлиника, магазины, детские площадки, хоккейная коробка, спортивная площадка и кружки для детей. Ваши дети будут счастливы проводить время на свежем воздухе, а вы сможете наслаждаться тишиной и спокойствием.Не упустите возможность стать владельцем этой замечательной квартиры! Звоните прямо сейчас, чтобы записаться на просмотр и узнать больше о вашем будущем доме!Код пользователя: 175156
                                      48 м2
                                      6 / 9 этаж
                                      Монолит
                                      • Показать контакты
                                      • Добавить в избранное
                                      48 м2
                                      6 / 9 этаж
                                      Монолит
                                      6 600 000 
                                      137 500 /м2
                                        1/12
                                        2-к, Железнодорожная, 15 Показать на карте
                                        Жаворонки
                                        Номер в базе: 782709. Квартира находится в селе Жаворонки, расположенном в Московской области. Это уютный и тихий район, окруженный зелеными зонами и природными красотами. В квартире сделан современный ремонт 2023 года, заменены все коммуникации.О ЛОКАЦИИ:- до станций Жаворонки 5 мин. пешком- школа- пруд возле дома- экологически чистый районО ДОМЕ:- кирпичный- парковка открытая во двореДОКУМЕНТЫ:- юридически абсолютно чистая- полная стоимость в договореВозможность приобретения в ипотеку под 10,5%.Содействие в получении положительного ипотечного решения со скидкой на % ставку. Страхование со скидками до 50%.Юридическое сопровождение сделки.
                                        54 м2
                                        2 / 2 этаж
                                        Кирпич
                                        • Показать контакты
                                        • Добавить в избранное
                                        54 м2
                                        2 / 2 этаж
                                        Кирпич
                                        5 400 000 
                                        100 000 /м2
                                          1/13
                                          2-к, 30 лет Октября, 11 Показать на карте
                                          Жаворонки
                                          Комнаты изолированные, раздельный санузел, балкон, центральная горячая вода. Один взрослый собственник, свободная продажа, никто не прописан и не проживает. Много места для парковки автомобиля, до ж/д станции Жаворонки 13 минут пешком.
                                          40 м2
                                          4 / 5 этаж
                                          Кирпич
                                          • Показать контакты
                                          • Добавить в избранное
                                          40 м2
                                          4 / 5 этаж
                                          Кирпич
                                          4 850 000 
                                          121 250 /м2
                                            1/11
                                            2-к, 30 лет Октября, 11 Показать на карте
                                            Жаворонки
                                            Комнаты изолированные, раздельный санузел, балкон, центральная горячая вода, окна во двор. Один взрослый собственник, ипотека возможна, без обременений и ограничений, свободная продажа, никто не прописан и не проживает. До ж/д станции Жаворонки 13 минут пешком.
                                            39 м2
                                            4 / 5 этаж
                                            Кирпич
                                            • Показать контакты
                                            • Добавить в избранное
                                            39 м2
                                            4 / 5 этаж
                                            Кирпич
                                            5 000 000 
                                            126 582 /м2
                                              1/17
                                              2-к, 30 лет Октября, 1 Показать на карте
                                              Жаворонки
                                              Продается уютная двухкомнатная квартира в селе Жаворонки, Одинцовский городской округ. Квартира расположена на 8 этаже 9-этажного дома, построенного в 1975 году. Общая площадь составляет 47,2 кв. м, а кухня занимает 9 кв. м. Высота потолков 2,7 метра, что создает ощущение пространства.В квартире выполнен косметический ремонт, что позволяет сразу заселиться и жить с комфортом. Планировка включает одну изолированную спальню и гостиную, а также балкон с видом на улицу, где можно насладиться свежим воздухом. Санузел раздельный, что удобно для семейного проживания. В квартире есть мусоропровод, поэтому можно легко поддерживать чистоту.Дом оснащен пассажирским лифтом. На придомовой территории находится наземная парковка, поэтому у вас всегда будет место для автомобиля. В подъезде чисто и ухоженно, что говорит о внимательном отношении жильцов к общим пространствам.Рядом с домом расположены все необходимые для комфортной жизни объекты инфраструктуры: школы, детские сады, магазины и медицинские учреждения. До ближайшего метро ''Кокошкино'' можно доехать на автомобиле всего за 14 минут, что делает поездки по городу быстрыми и удобными.Продажа осуществляется по договору купли-продажи. Квартира без обременений и готова к сделке. Подходит для приобретения в ипотеку. Все документы в порядке, поэтому процесс покупки пройдет гладко и без задержек.Приглашаем вас на просмотр, чтобы лично оценить все преимущества этой квартиры. Свяжитесь с нами для записи на удобное для вас время!
                                              47 м2
                                              8 / 9 этаж
                                              Кирпич
                                              • Показать контакты
                                              • Добавить в избранное
                                              47 м2
                                              8 / 9 этаж
                                              Кирпич
                                              6 500 000 
                                              137 712 /м2
                                                1/8
                                                2-к, Советская 1-я, 2а Показать на карте
                                                Жаворонки
                                                Квартира (доля в частном доме) идеальное место для жизни, все в пешей доступности, очень качественный дом. Дому 10 лет, собственность. Документы готовы. Лучшее предложение за эти деньги! ГАЗ, свет, вода, канализация.
                                                75 м2
                                                2 / 2 этаж
                                                Кирпич
                                                • Показать контакты
                                                • Добавить в избранное
                                                75 м2
                                                2 / 2 этаж
                                                Кирпич
                                                4 500 000 
                                                60 000 /м2
                                                  1/16
                                                  2-к, 30 лет Октября, 11 Показать на карте
                                                  Жаворонки
                                                  Продается 2 комнатная квартира на 2 этаже 5 этажном кирпичном доме. КВАРТИРА. Сделан хороший ремонт, стоят стеклопакеты, дорогая дверь с шумоизоляцией, поменяны все полы, электропроводка. Мебель остается.ДОКУМЕНТЫ. Наследство более 10 лет в собственности.1 собственник. Никто не прописан. Свободная продажаПолная стоимость в договоре купли продажи. Подходит под ипотеку любого банка.Долгов , обременений, запретов, арестов НЕТ.ИНФРАСТРУКТУРА: Очень спокойный и тихий спальный район. Свое парковочное место. До станции Жаворонки 5 мин на маршрутном автобусе, или 15 мин пешком. , Номер лота: 4243081
                                                  41 м2
                                                  2 / 5 этаж
                                                  Кирпич
                                                  • Показать контакты
                                                  • Добавить в избранное
                                                  41 м2
                                                  2 / 5 этаж
                                                  Кирпич
                                                  6 200 000 
                                                  150 852 /м2
                                                    • 1
                                                    • 2
                                                    • Следующая
                                                    Распечатать

                                                    Вместе с этим также ищут:

                                                    Продажа квартир в Одинцове Продажа однокомнатных квартир в Одинцове Продажа комнат в Одинцове Продажа гаражей в Одинцове Продажа вторички - квартиры в Одинцове Квартиры в новостройках в Одинцове

                                                    🏠 Как купить двухкомнатную квартиру в Одинцове на N1?

                                                    • ✔ В поисках объявления о продаже или покупке квартир в Одинцове?
                                                    • ✔ На N1 размещены 32 квартиры
                                                    • ✔ Чтобы купить или продать недвижимость, воспользуйтесь формой поиска, фильтрами или быстрыми ссылками.

                                                    💸 Сколько стоит двухкомнатная квартира в Одинцове?

                                                    • 🟢 Средняя цена продажи двухкомнатных квартир - 5,63 млн ₽
                                                    • 🟢 Минимальная стоимость за 1 м2: 124,38 тыс ₽

                                                    📚 Какая площадь двухкомнатных квартир?

                                                    • Наибольшая площадь: 75 м²
                                                    • Минимальная площадь: 35 м²