Если цена в объявлении изменится, мы сразу сообщим вам об этом на электронную почту.
Нажимая «Подписаться», вы соглашаетесь с правилами.
продам 2-к, Глазынинская, 269 499 999 ₽
4 июня 2025
Дата публикации объявления
Обн. 15 авг
Дата обновления объявления
212 528 ₽/м²
Чистая продажа
Термин "Чистая продажа" означает, что в квартире никто не прописан или
есть куда выписаться и вывезти вещи. Это лучший вариант для покупателя.
Вероятность срыва сделки минимальна.
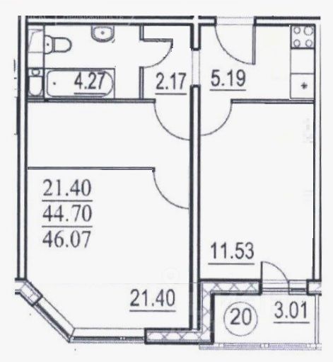
Вашему вниманию предлагается полностью готовая к комфортному проживанию молодой семьи уютная и просторная евродвушка в экологически чистом городе Одинцово на Западе московской области. С Вашего позволения разрешите сразу отвечу на самые интересующие Вас вопросы: - Скажите, что с документами на квартиру? Квартира была куплена моим клиентом в 2020 году по договору купли продажи. Какие либо ограничения, залоги или обременения права ОТСУТСТВУЮТ. Кадастровый номер квартиры 50:20:0030213:502. - Какие общие параметры и характеристики квартиры? Общая площадь квартиры без учета лоджии 44,7 кв.м.: кухня 6 кв.м., Жилая комната 1 11,53, Жилая комната 2 21,4 кв.м., лоджия 3,0 кв.м., Расположение кухни и комнат линейное, Этаж 6/21. Дом панельный, 2017 г.
Вашему вниманию предлагается полностью готовая к комфортному проживанию молодой семьи уютная и просторная евродвушка в экологически чистом городе Одинцово на Западе московской области. С Вашего позволения разрешите сразу отвечу на самые интересующие Вас вопросы: - Скажите, что с документами на квартиру? Квартира была куплена моим клиентом в 2020 году по договору купли продажи. Какие либо ограничения, залоги или обременения права ОТСУТСТВУЮТ. Кадастровый номер квартиры 50:20:0030213:502. - Какие общие параметры и характеристики квартиры? Общая площадь квартиры без учета лоджии 44,7 кв.м.: кухня 6 кв.м., Жилая комната 1 11,53, Жилая комната 2 21,4 кв.м., лоджия 3,0 кв.м., Расположение кухни и комнат линейное, Этаж 6/21. Дом панельный, 2017 г. постройки, фундамент монолитная плита, перекрытия железобетонные. В квартире выполнен качественный ремонт, присутствует вся необходимая мебель и техника . - Что с социальной инфраструктурой района и транспортной доступностью? Шаговая доступность до общеобразовательной школы 3, детских дошкольных учреждений 13, 23 продовольственные магазины ''Пятерочка'', ''Дикси'', Магнит, Ашан, аптеки, отделения Почты России, Сбербанка, Мои документы, различные кафе и ресторанчики расположены в радиусе 10-ти минутной пешей доступности. Микрорайон расположен внутри красивейшего лесного массива со своими парками и зонами отдыха. В части транспортной доступности: 8 километров до МКАД по Минскому шоссе на автомобильном транспорте, станция МЦД Одинцово - 15 минут пешком, станция метрополитена Славянский бульвар - 30 минут (на общественном транспорте), до центра Столицы 45 мин. (общественный транспорт). - Какие общие параметры сделки? У нас свободная продажа, в квартире никто не зарегистрирован (подтверждено ВДК), задолженность за ЖКХ отсутствует. Ипотека приветствуется, есть технический паспорт квартиры. Справки из ПНД и НД имеются, при необходимости обновим. - Когда можно посмотреть квартиру и внести аванс/задаток? Показываем оперативно, но исключительно по предварительной договоренности. ЗВОНИТЕ Уважаемые Покупатели и Коллеги. C удовольствием отвечу на все интересующие Вас дополнительные вопросы. Аргументированный торг приветствуется. Видео презентацию по квартире вышлю на любой доступный для Вас мессенджер.