ID: 584485 Сдается в аренду дом 650 кв.м. на участке 30 соток в КП Лайково-2. 14 км. от МКАД по Рублево-Успенскому или Можайскому шоссе. Есть выезд на платную скоростную дорогу.
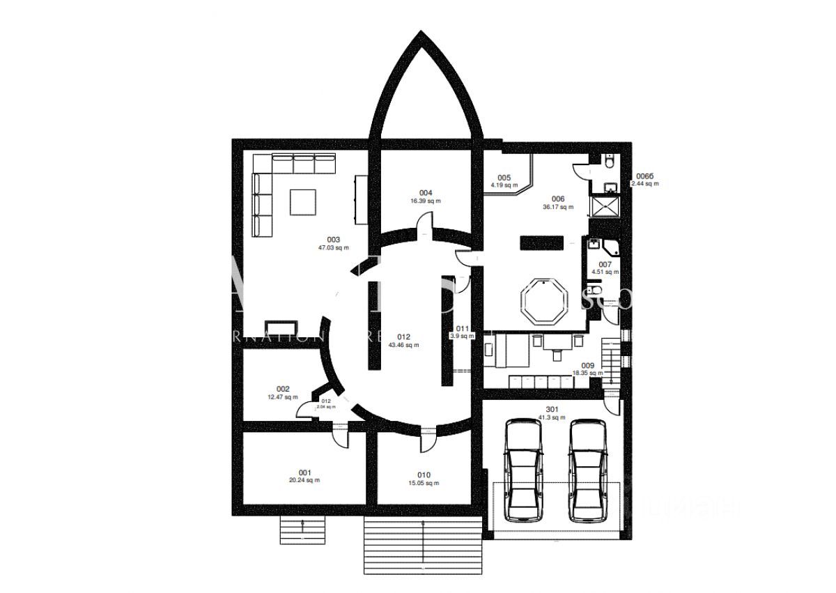
Планировка: цоколь - гостиная, маленькая комната, котельная, кладовая, прачечная, сауна, джакузи, душевая, санузел. 1 этаж - холл, гостиная со вторым светом и камином, кухня изолирована, из кухни выход на террасу и участок, две спальни с санузлами, гардеробными и балконами. 2 этаж - главная спальня с большой террасой, гардеробной и санузлом. Вторая спальня со своим санузлом и гардеробной. Кондиционирование, скоростной интернет, подогрев пола.
Гараж на 2 м/м, из гаража вход в комнату для персонала с санузлом и кухней.
ID: 584485 Сдается в аренду дом 650 кв.м. на участке 30 соток в КП Лайково-2. 14 км. от МКАД по Рублево-Успенскому или Можайскому шоссе. Есть выезд на платную скоростную дорогу.
Планировка: цоколь - гостиная, маленькая комната, котельная, кладовая, прачечная, сауна, джакузи, душевая, санузел. 1 этаж - холл, гостиная со вторым светом и камином, кухня изолирована, из кухни выход на террасу и участок, две спальни с санузлами, гардеробными и балконами. 2 этаж - главная спальня с большой террасой, гардеробной и санузлом. Вторая спальня со своим санузлом и гардеробной. Кондиционирование, скоростной интернет, подогрев пола.
Гараж на 2 м/м, из гаража вход в комнату для персонала с санузлом и кухней.
Участок лесной, с множеством взрослых хвойных деревьев, ровный, правильной формы, с ландшафтными работами: газон, дорожки, декоративные насаждения.