Если цена в объявлении изменится, мы сразу сообщим вам об этом на электронную почту.
Нажимая «Подписаться», вы соглашаетесь с правилами.
продам 2-к, Маршала Жукова, 23 корп. 19 750 000 ₽
6 авг 2025
Дата публикации объявления
Обн. 6 авг 2025
Дата обновления объявления
3
Количество просмотров (+ просмотры за сегодня)
172 566 ₽/м²
Чистая продажа
Термин "Чистая продажа" означает, что в квартире никто не прописан или
есть куда выписаться и вывезти вещи. Это лучший вариант для покупателя.
Вероятность срыва сделки минимальна.
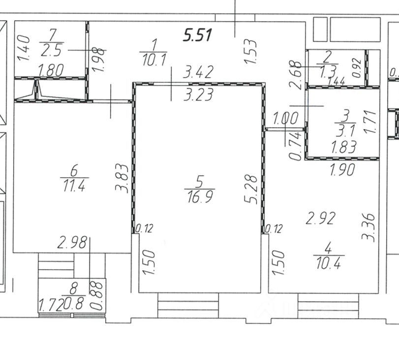
Продаю двухкомнатную квартиру площадью 56,5 кв.м. на 14-этаже, в центре города Одинцово, по адресу ул. Маршала Жукова, дом 23, корпус 1. Дом 2024 года постройки, монолитно-кирпичный, стены из двойного пеноблока шириной 450 мм. В доме 25 этажей, технический этаж и крыша, подземная парковка на 169 машино-мест, лифт спускается в паркинг. Площадь квартиры 56,5 кв.м., кухня 11,4 кв.м., комнаты 16,9 кв.м. и 10,4 кв.м., кладовая 2,5 кв.м., прихожая 10,1 кв.м. Квартира свободной планировки, можно распланировать по своему желанию. Окна выходят во двор. До станции метро МЦД 15 мин. пешком, до центра Москвы 20 мин. на авто, удобный выезд на Северный объезд - дублер Можайского шоссе, также выезды на Минское шоссе, Рублево-Успенское ш.
Продаю двухкомнатную квартиру площадью 56,5 кв.м. на 14-этаже, в центре города Одинцово, по адресу ул. Маршала Жукова, дом 23, корпус 1. Дом 2024 года постройки, монолитно-кирпичный, стены из двойного пеноблока шириной 450 мм. В доме 25 этажей, технический этаж и крыша, подземная парковка на 169 машино-мест, лифт спускается в паркинг. Площадь квартиры 56,5 кв.м., кухня 11,4 кв.м., комнаты 16,9 кв.м. и 10,4 кв.м., кладовая 2,5 кв.м., прихожая 10,1 кв.м. Квартира свободной планировки, можно распланировать по своему желанию. Окна выходят во двор. До станции метро МЦД 15 мин. пешком, до центра Москвы 20 мин. на авто, удобный выезд на Северный объезд - дублер Можайского шоссе, также выезды на Минское шоссе, Рублево-Успенское ш. Развитая инфраструктура: рядом д/сады, школы, филиал МГИМО, торговые центры, 2 фитнес - центра с бассейнами, волейбольный центр, ледовый дворец, школа искусств, лыжно-роллерная трасса, всё в пешей доступности, экологически чистый район. Один взрослый собственник, свободная продажа. Никто не прописан. Без обременений.