Термин "Чистая продажа" означает, что в квартире никто не прописан или
есть куда выписаться и вывезти вещи. Это лучший вариант для покупателя.
Вероятность срыва сделки минимальна.
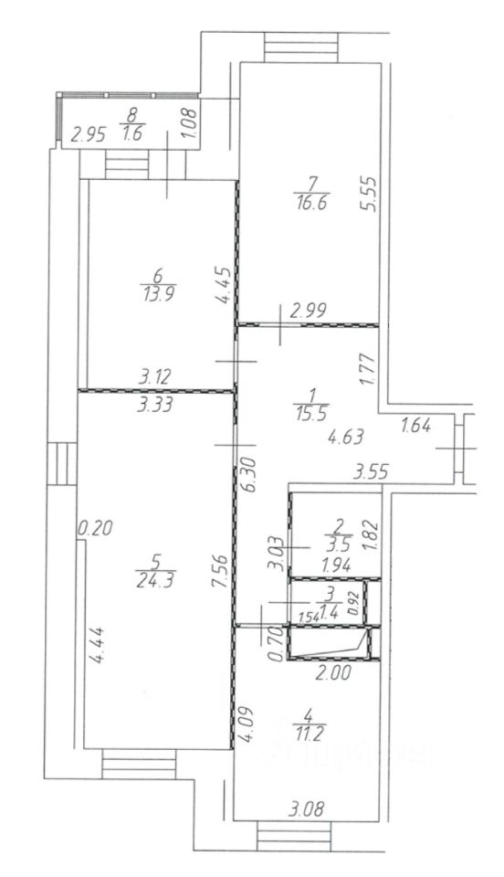
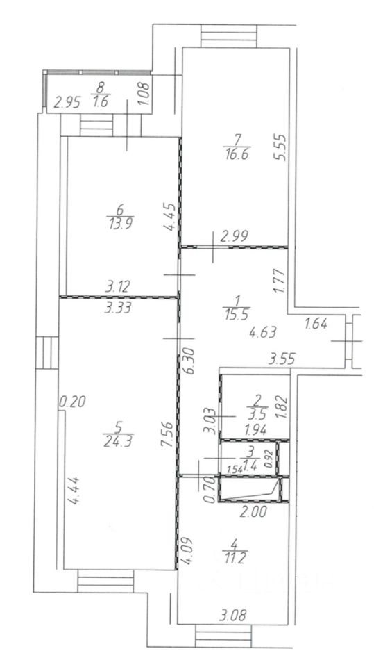
Продаю трехкомнатную квартиру площадью 88,0 кв.м. на 13-этаже, в центре города Одинцово, по адресу ул. Маршала Жукова, дом 23, корпус 2. Дом 2024 года постройки, монолитно-кирпичный, стены из двойного пеноблока шириной 450 мм. В доме 25 этажей, технический этаж и крыша, подземная парковка на 169 машино-мест, лифт спускается в паркинг. Площадь квартиры 88,0 кв.м., кухня 11,2 кв.м., комнаты 24,3 кв.м., 16,6 кв.м. и 13,9 кв.м., огромная прихожая с окном 15,5 кв.м., санузел 4,9 кв.м., лоджия 3,2 кв.м. Квартира свободной планировки, можно распланировать по своему желанию. Окна выходят на две стороны, так называемая распошонка, много солнца в окнах. До станции метро МЦД 15 мин. пешком, до центра Москвы 20 мин.
Продаю трехкомнатную квартиру площадью 88,0 кв.м. на 13-этаже, в центре города Одинцово, по адресу ул. Маршала Жукова, дом 23, корпус 2. Дом 2024 года постройки, монолитно-кирпичный, стены из двойного пеноблока шириной 450 мм. В доме 25 этажей, технический этаж и крыша, подземная парковка на 169 машино-мест, лифт спускается в паркинг. Площадь квартиры 88,0 кв.м., кухня 11,2 кв.м., комнаты 24,3 кв.м., 16,6 кв.м. и 13,9 кв.м., огромная прихожая с окном 15,5 кв.м., санузел 4,9 кв.м., лоджия 3,2 кв.м. Квартира свободной планировки, можно распланировать по своему желанию. Окна выходят на две стороны, так называемая распошонка, много солнца в окнах. До станции метро МЦД 15 мин. пешком, до центра Москвы 20 мин. на авто, удобный выезд на Северный объезд - дублер Можайского шоссе, также выезды на Минское шоссе, Рублево-Успенское ш. Развитая инфраструктура: рядом д/сады, школы, филиал МГИМО, торговые центры, 2 фитнес - центра с бассейнами, волейбольный центр, ледовый дворец, школа искусств, лыжно-роллерная трасса, всё в пешей доступности, экологически чистый район. Один взрослый собственник, свободная продажа. Никто не прописан. Без обременений.