Большой деревянный коттедж, с дополнительными постройками, в посёлке с беспрецедентной охраной.
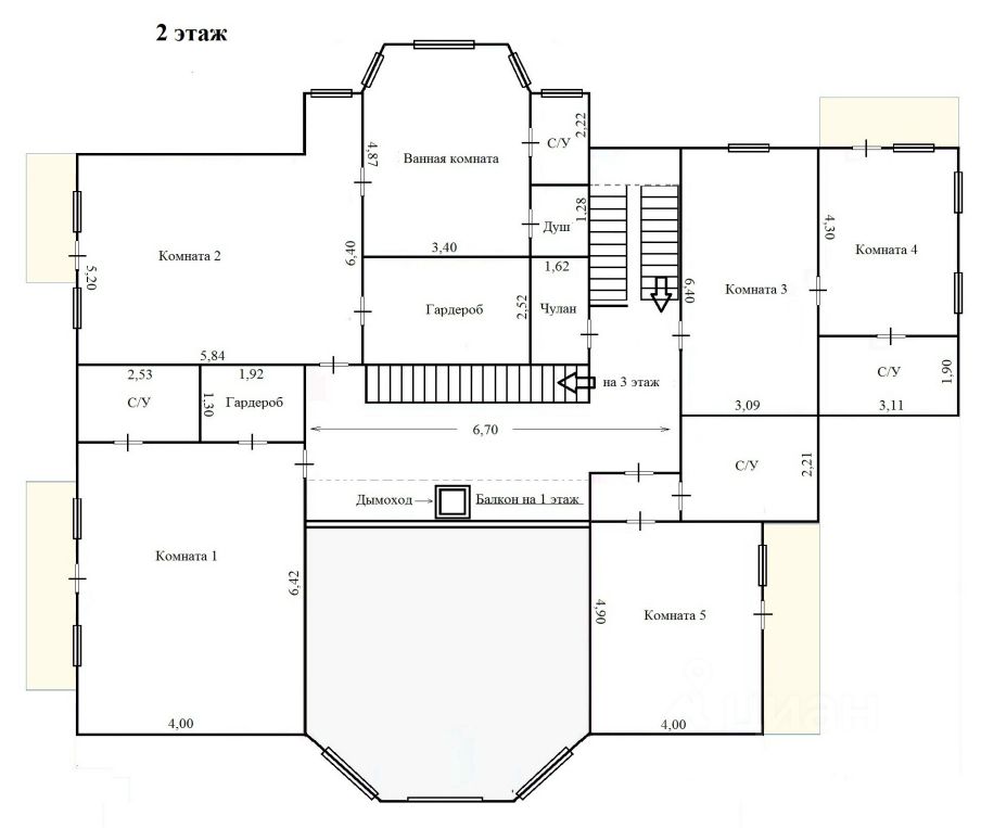
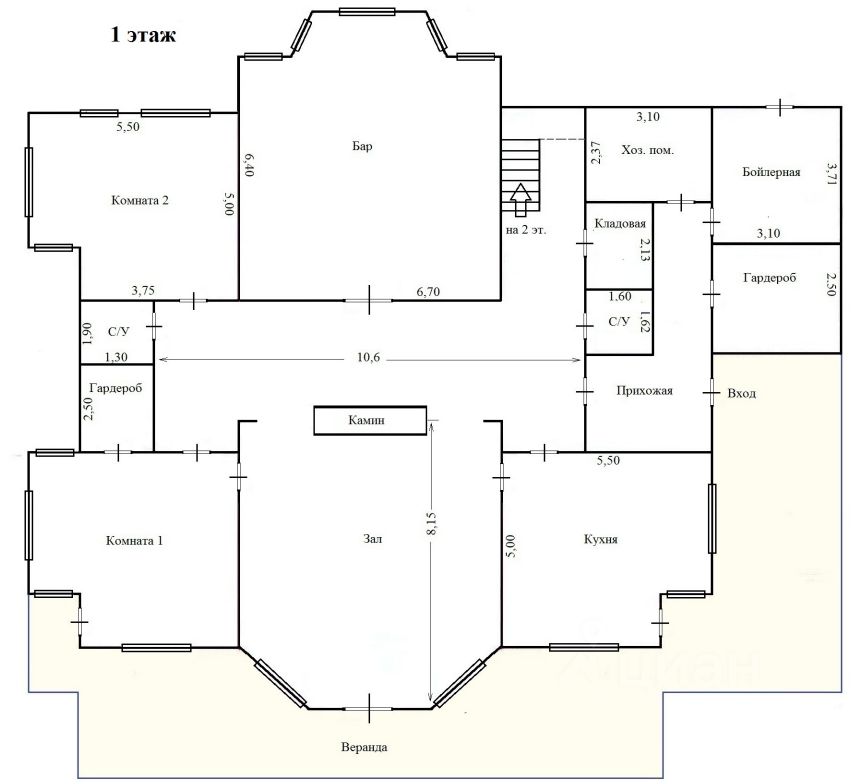
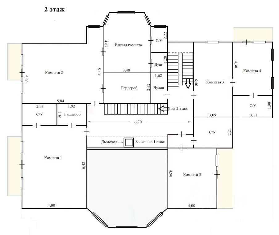
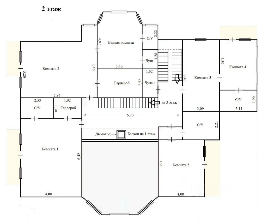
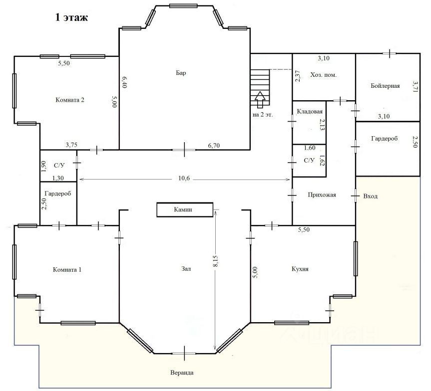
В коттедже 6 просторных спален, гардеробные, зал, кухня, барная комната, кабинет и пр. помещения.
Дом охраны:
2 этаж: Санузел- 2 шт., Гостиная-кухня, 2 спальни,
1 этаж: гараж на 3 машины, комната, бойлерная
Дом праздности:
Зал, кухня, санузел, прихожая
Также построены: мангальная, дровник, вольеры для собак 2 шт., свой выход к пруду.

































