Термин "Чистая продажа" означает, что в квартире никто не прописан или
есть куда выписаться и вывезти вещи. Это лучший вариант для покупателя.
Вероятность срыва сделки минимальна.
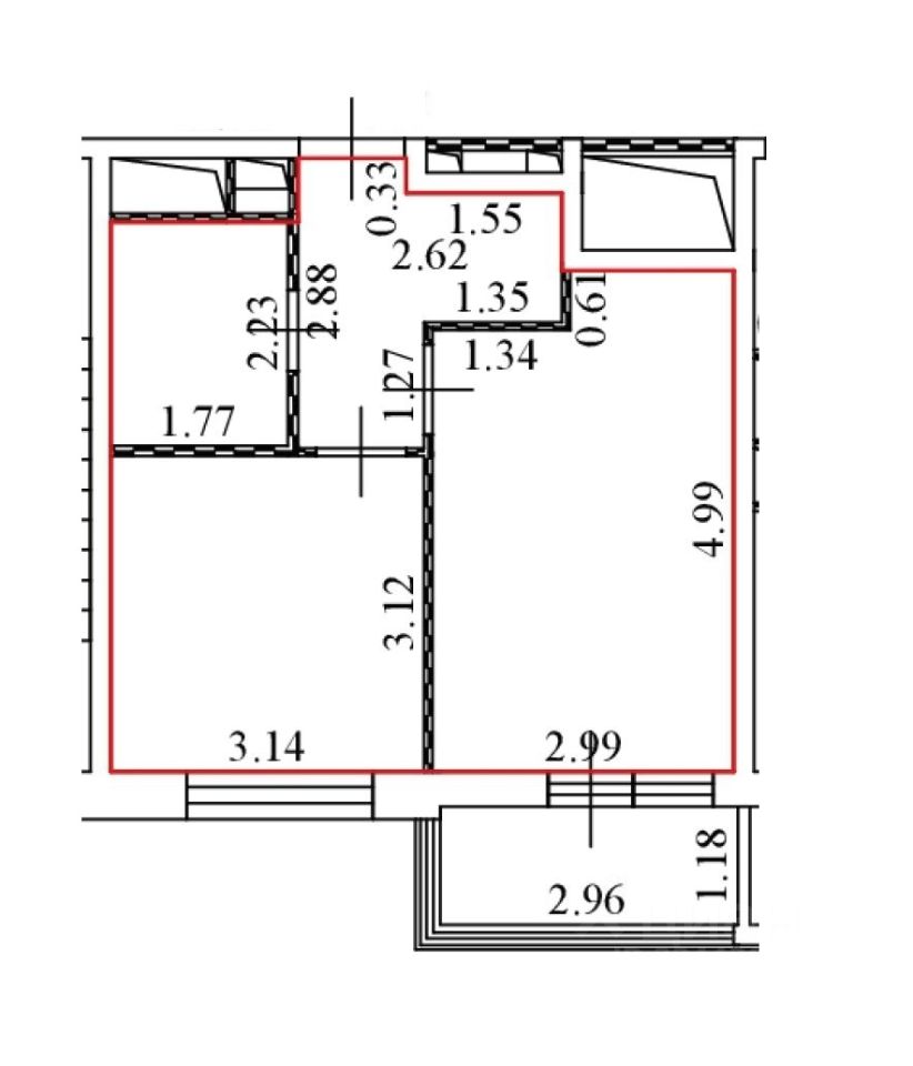
Продаю однокомнатную квартиру в ЖК комфорт-класса ''Одинград. Фунукциональная планировка, высокие потолки, просторная застекленная лоджия 3,6 кв.м. Общая площадь без учета лоджии - 33,24 кв.м., комната - 14,1 кв.м., кухня - 9,8 кв.м., с/у совмещенный. Из окна открывается вид на лесной массив. Квартира без отделки. Просторные входные группы без порогов и пандусов. Вместительные скоростные лифты. Для удобства жителей есть специальная комната на первом этаже, где можно оставить коляску или велосипед. Во дворе предусмотрены детские и спортивные площадки, а также зоны отдыха с гамаками и лежаками, открытый воркаут-комплекс с тренажерами, спортплощадки для любителей футбола, волейбола и тенниса, беговые и велосипедные дорожки, прогулочные зоны.
Продаю однокомнатную квартиру в ЖК комфорт-класса ''Одинград. Фунукциональная планировка, высокие потолки, просторная застекленная лоджия 3,6 кв.м. Общая площадь без учета лоджии - 33,24 кв.м., комната - 14,1 кв.м., кухня - 9,8 кв.м., с/у совмещенный. Из окна открывается вид на лесной массив. Квартира без отделки. Просторные входные группы без порогов и пандусов. Вместительные скоростные лифты. Для удобства жителей есть специальная комната на первом этаже, где можно оставить коляску или велосипед. Во дворе предусмотрены детские и спортивные площадки, а также зоны отдыха с гамаками и лежаками, открытый воркаут-комплекс с тренажерами, спортплощадки для любителей футбола, волейбола и тенниса, беговые и велосипедные дорожки, прогулочные зоны. Все необходимое находится прямо на территории ЖК: на первых этажах расположены магазины и супермаркеты, аптеки, стоматология, салон красоты и спа-центр, кофейни, студия йоги, барбершоп и химчистка. Открыты два детских сада, скоро планируется открытие школы. В ближайшем окружении престижные образовательные учреждения, в том числе лицеи, гимназии, школы с изучением иностранных языков и филиал МГИМО. ЖК расположен в одном из лучших районов г. Одинцово, здесь чистый воздух, лесные массивы: Подушкинский лесопарк, Дубковский лес с Решетниковым прудом, Спортивный парк им. Л.Лазутиной, поблизости находятся Ледовый дворец ''Армада'' и детско-юношеская шахматная школа, волейбольный центр и спортивный комплекс с тренажерами. Свободная продажа, без обременений, 1 собственник, полная стоимость в договоре