Если цена в объявлении изменится, мы сразу сообщим вам об этом на электронную почту.
Нажимая «Подписаться», вы соглашаетесь с правилами.
продам 2-к, Маршала Бирюзова, 288 800 000 ₽
19 янв
Дата публикации объявления
Обн. 20 мар
Дата обновления объявления
2
Количество просмотров (+ просмотры за сегодня)
198 198 ₽/м²
Чистая продажа
Термин "Чистая продажа" означает, что в квартире никто не прописан или
есть куда выписаться и вывезти вещи. Это лучший вариант для покупателя.
Вероятность срыва сделки минимальна.
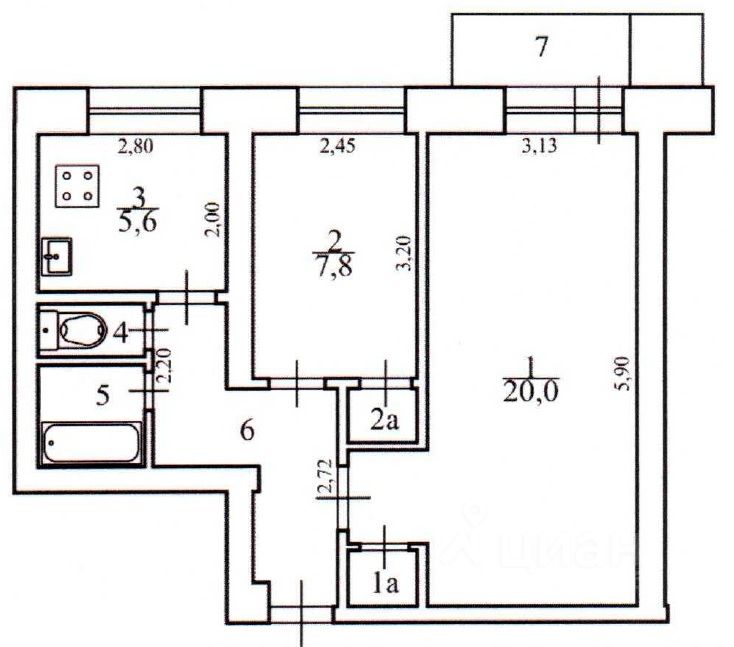
Продается 2-хкомнатная квартира на седьмом этаже 12-этажного дома общей площадью 44,4 кв.м, жилая 27,8 кв.м. Комнаты изолированные. Санузел раздельный. Балкон. Квартира светлая, теплая. Солнечная сторона - окна смотрят на восток. Окна выходят на улицу. Газ, центральное отопление (батареи зимой очень горячие). В квартире установлены счетчики на воду. Имеются два встроенных шкафа для хранения гардероба и вещей. Выполнен косметический ремонт. Никто не проживает. Квартира готова к заселению. В подъезде два пассажирских лифта. Мусоропровод. В доме присутствуют все основные операторы интернет и кабельного телевидения. Подъезд оборудован современным видеодомофоном с выходом в интернет. Отлично развитая инфраструктура.
Продается 2-хкомнатная квартира на седьмом этаже 12-этажного дома общей площадью 44,4 кв.м, жилая 27,8 кв.м. Комнаты изолированные. Санузел раздельный. Балкон. Квартира светлая, теплая. Солнечная сторона - окна смотрят на восток. Окна выходят на улицу. Газ, центральное отопление (батареи зимой очень горячие). В квартире установлены счетчики на воду. Имеются два встроенных шкафа для хранения гардероба и вещей. Выполнен косметический ремонт. Никто не проживает. Квартира готова к заселению. В подъезде два пассажирских лифта. Мусоропровод. В доме присутствуют все основные операторы интернет и кабельного телевидения. Подъезд оборудован современным видеодомофоном с выходом в интернет. Отлично развитая инфраструктура. Возле дома остановка общественного транспорта, где ходят автобусы и маршрутки на все направления, в том числе до станции МЦД Одинцово, а также 339-й автобус в Москву до М. Парк Победы. Возле дома основные торговые предприятия - Пятерочка, Вкус-Вилл, Ярче, Озон, Яндекс-маркет, WB. Через один дом расположен детский садик, за ним школа. В 6-и минутах ходьбы поликлиника. В пяти минутах ходьбы расположена администрация города Одинцово. За ней Городской парк, а также Центральный стадион, волейбольный центр и Ледовый дворец. Напротив администрации центр эстетического воспитания с множественными кружками и секциями. 20 минут пешком до станции МЦД Одинцово. Три взрослых собственника. Собственность более 5-и лет. Обременений и долгов нет. Перепланировок нет. Никто не прописан. Свободная продажа. Полная стоимость в договоре. Подходит под ипотеку и материнский капитал. Оперативный показ.