2-к, Микрорайон Клубничное Поле, 2 Показать на карте
Одинцово
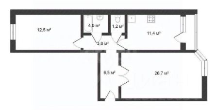
Код объекта: 1207830. Продается двухкомнатная квартира 51,6 м2 в новом ЖК комфорт-класса ''ОДИНГРАД Семейный''. Планировка данной квартиры - самая удачная среди 2-комнатных. 2 изолированные комнаты, 2 санузла, один из которых можно завести в мастер-спальню. Просторная кухня 10,6 м2, из которой можно сделать выход в гостиную. В гостиной (или спальне) широкое остекление с 5 окнами (!) - (есть угловое окно из 4 створок, все створки открываются - и одно отдельное). При необходимости можно разделить это пространство на 2 отдельных помещения. Окна выходят во двор и в сторону леса, поэтому в квартире тихо и уютно. Для спортивного инвентаря и колясок есть колясочная на первом этаже.Современные входные группы и общедомовая территория, ландшафтный дизайн, игровые и спортивные площадки, концепция ''двор без машин'', бесшумные скоростные лифты, развитая социальная и бытовая инфраструктура для детей и взрослых. Организовано пространство для отдыха, воркаут-зоны со спортивными тренажерами, площадки для занятий йогой, игровые городки для малышей разного возраста. Нижние этажи с коммерческими объектами: супермаркеты, магазины, рестораны, кафе и салоны красоты.ЖК расположен по соседству с Дубковским и Подушкинским лесом с вековыми деревьями, неподалеку Одинцовский парк культуры, спорта и отдыха им. Ларисы Лазутиной с известной лыжероллерной трассой, местами для прогулок и отдыха, ресторанами, здесь проводятся крупные городские мероприятия. Летом 2024 года на территории ЖК застройщик ввел в эксплуатацию второй детский сад на 130 мест. Ведется строительство общеобразовательной школы на 1100 мест в квартале ''Семейный''. Жилой квартал имеет собственный выезд на трассу М-1, что позволяет за 10 минут добраться до МКАД на автомобиле, а до делового центра Москва-Сити — за 20 минут. Хорошо развит общественный транспорт - электрички МЦД (Д1) и автобусное сообщение.Один собственник, свободная продажа, без обременений, полная стоимость в договоре. Удачное сочетание хорошей локации, современного ЖК, функциональной планировки квартиры и простоты выхода на сделку. Звоните, записывайтесь на показ!
51 м2
4 / 25 этаж
Монолит
- Показать контакты
- Добавить в избранное
51 м2
4 / 25 этаж
Монолит
9 700 000
187 984 /м2
