Производственное помещение
Зеленая, 30 Показать на карте
Зеленая, 30 Показать на карте
Одинцово
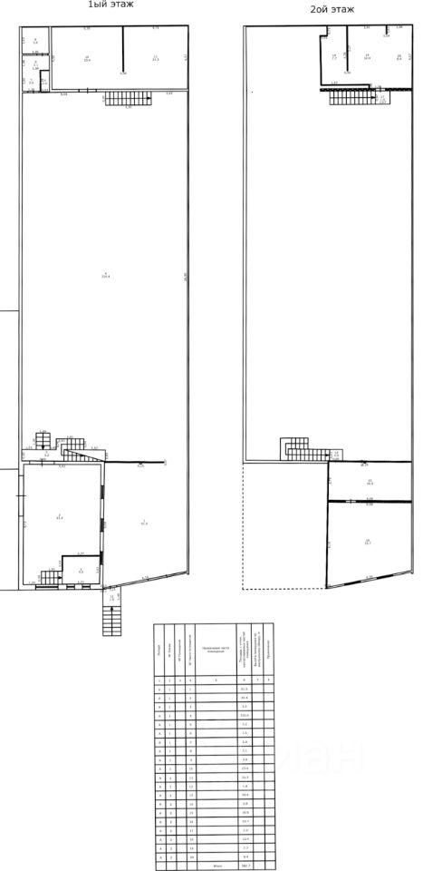
БЕЗ КОМИССИИ! Предлагается складское помещение площадью 710 м2 на 1 этаже.Параметры помещения:- отопление: есть- тип пола: антипыль- ворота: 1 шт. в ноль- высота потолков: 4.0 м- электричество: 20 кВт- охраняемая территорияра, работа 24/7Ставка - 850 000 руб. в месяц, НДС 22% включенК/у оплачиваются сверхуВъезд на территорию бесплатныйС АГЕНТАМИ НЕ РАБОТАЕМ! ПРОСЬБА НЕ ЗВОНИТЬ!ПРОСЬБА СВЕТОФОР И МАЯК НЕ БЕСПОКОИТЬ.
710 м2
- Показать контакты
- Добавить в избранное
710 м2
850 000 /мес.
1 197 /м2
